Chowdhuryz'

  • Overview
  • Amenities
  • Plans
  • Gallery
  • Video Tours
  • Location
  • Enquiry

Chowdhuryz'

A high-rise luxury residential complex, delivered ahead of schedule with cutting-edge smart home features.

Projeect Details:

  • Project Address: Plot No.: 10, Road No.: 413, Sector: 07, Jolshiri Abashon, Dhaka
  • Plot Size: 5 Katha
  • Plot Orientation: North-South Face (Avenue Road)
  • Apartment Size: 2850 sqft (approx.)
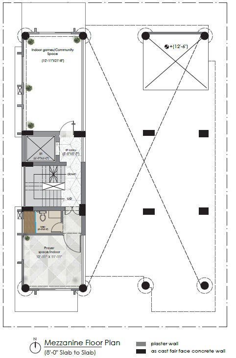
  • Number of Floors: G + M + 8
  • Building Type: 9 Storied Residential Building
  • Access Road: 40’-0” (South Side) & 120’-0” (North Side)
  • Project Status: On-Going

CHOWDHURYZ’ combines architectural elegance with technology, offering residents a premium living experience in the heart of Jolshiri Abashon.

https://obidatravel.com/brown/images/projects/Nimageabout68dcec1c358ee6.56299954.jpg
https://obidatravel.com/brown/images/projects/Nimageabout68dcec2543ae23.03028276.jpg
https://obidatravel.com/brown/images/projects/Nimageabout68dcec2e9f0822.62697537.jpg
post_07
post_07
post_07
post_07
post_07
post_07
post_07
INSTAGRAM
product_03
product_03
product_03
product_03
product_03
product_03
CALL US

Sunday to Thursday: 9:00 AM – 6:00 PM Weekend: Friday & Saturday (Closed)

Copyright © 2026 Brownfield. All Rights Reserved.